Key features
- Stylish architecturally designed contemporary new build family home offered for sale with no onward chain
- Built to a high specification within high quality fixtures and fittings including triple glazed aluminium windows, solar thermal panels, air source heat pump and underfloor heating to the ground floor
- Sought after residential location within minutes of Laxey village, school and beaches
- Highly spacious adaptable family accommodation enjoying a 6 year building warranty
- Welcoming entrance hallway with feature double height entrance
- Living room with contemporary freestanding log burner - perfect for those cosy winter nights
- Stunning open plan dining kitchen with contemporary 'boutique' style kitchen
- Ground floor cloakroom WC, utility room and internal access to the garage
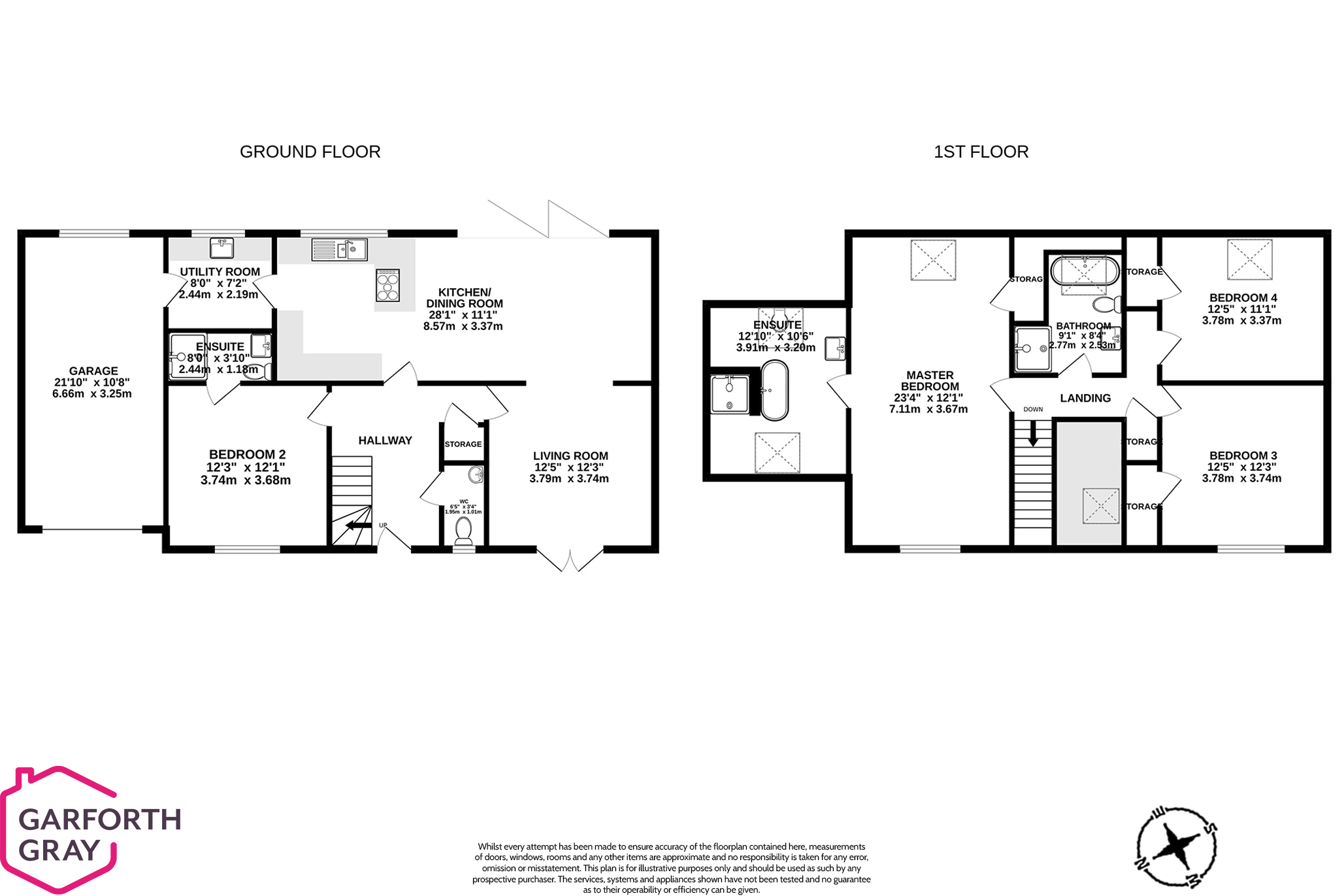
- 4 Double bedrooms (1 on the ground floor), 2 luxury ensuite and 3 bedrooms benefit from fitted fitted storage
- Large driveway with access to the garage and a lawned rear garden with raised seating area - accessed directly from the bi-folding doors in the kitchen/dining area, ideal space for alfresco dining!
Floor plans

Summary
This architecturally stunning new build family home showcases meticulous design and construction, finished to an exceptionally high specification. Boasting premium fixtures and fittings, the property includes energy-efficient features such as triple-glazed aluminium windows, solar thermal panels, and an air source heat pump, offering the perfect blend of luxury and sustainability.
Set in a highly sought-after residential area, just minutes from Laxey village, schools, and beautiful beaches, this spacious home offers adaptable living for modern families. The grand entrance hallway impresses with its double-height ceiling, leading into a cosy living room complete with a contemporary freestanding log burner, ideal for winter evenings. The heart of the home is the open-plan dining kitchen, featuring a boutique-style design with quartz worktops, sleek appliances, and bi-folding doors that extend onto a beautifully landscaped lawned garden with a raised seating area, perfect for alfresco dining and entertaining.
Additional highlights include a convenient ground-floor cloakroom WC, a utility room, and internal access to the garage. There are four generously sized double bedrooms, including a ground-floor option for flexibility, two luxurious ensuites, and three bedrooms with fitted storage. There are also distant sea views from the upstairs rear bedrooms. The large driveway offers ample off-road parking and access to the garage, making this exceptional home a perfect combination of elegance, practicality, and a prime location.
Please note the garage has a remote electric garage door and there is also power supply for cars and is linked to car charging tariff.
Offered for sale with no onward chain.
Primary Schools
- Laxey
Secondary Schools
- St Ninian's
- Ramsey Grammar
Further Information
Inclusions All new fitted floor coverings and light fittings
Appliances Multi function oven, hob with extractor, dishwasher, fridge freezer, washer dryer and a boiling hot water tap
Tenure Freehold
Rates Treasury tel - 01624 685661
Heating Air source heat pump
Underfloor heating to the ground floor
Solar thermal panels
Windows Aluminium triple glazing
6 year building warranty
Offered for sale with no onward chain
Amenities
- Garage/Parking
- Garden
- Parking
Location
Glenlea, Highfield Drive, Baldrine
- View more Isle of Man properties in Baldrine
- View more Isle of Man properties in the East
- View more Isle of Man properties within the IM4 postcode
- View more Isle of Man properties in the Laxey primary school catchment area
- View more Isle of Man properties in the St Ninian's secondary school catchment area

























