Key features
- Impressive double fronted period style family home
- Convenient and leafy upper Douglas location within walking distance to the local schools, shops and city centre
- Accommodation retains much of the original charm and character with many pleasing features
- Beautifully appointed accommodation throughout
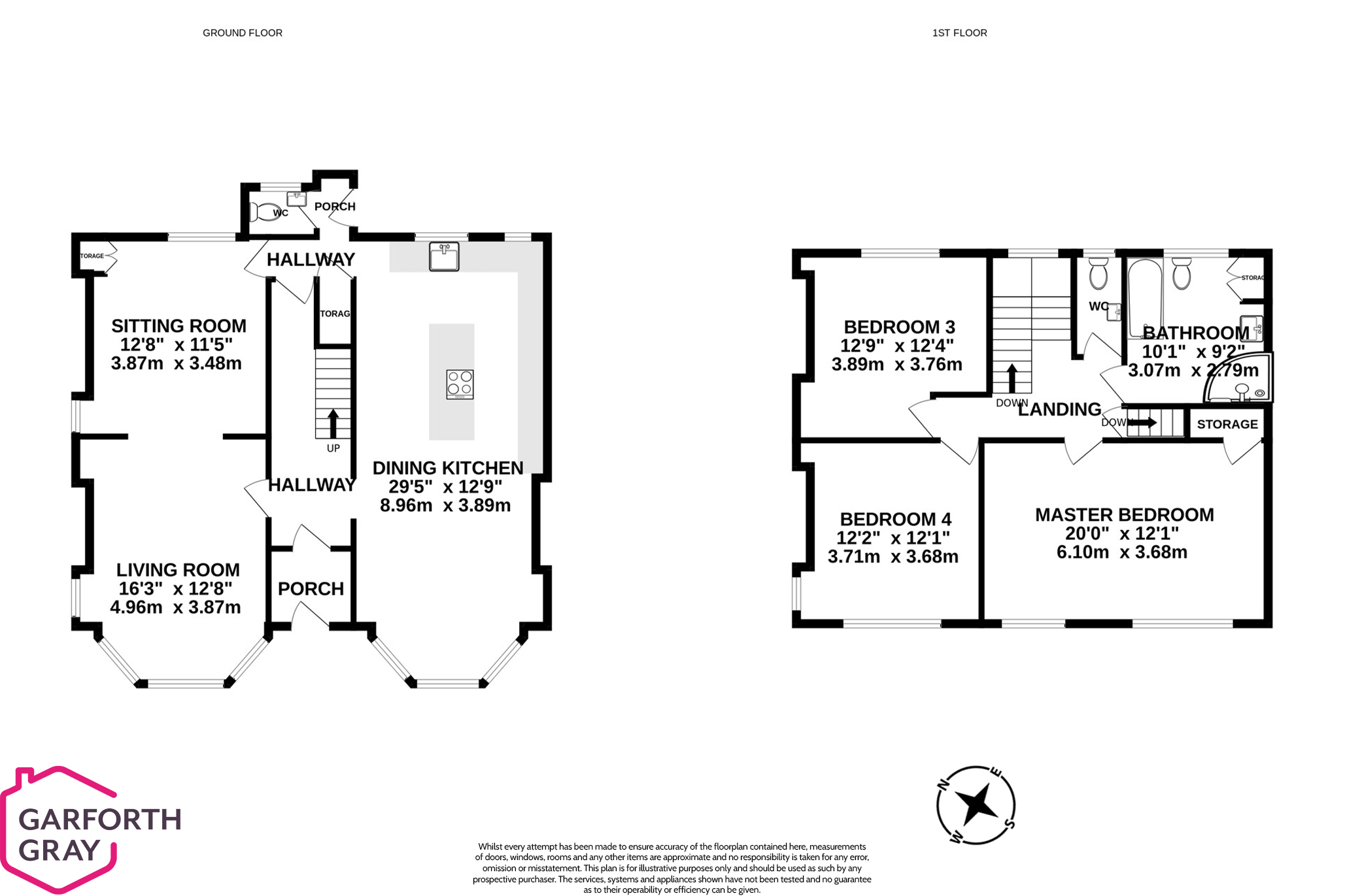
- Welcoming reception hall with washroom (WC)
- Elegant living room with opening to snug/ family area - both reception areas complemented by tiled flooring
- Stunning open plan dining kitchen with large island and breakfast bar seating (new kitchen fitted in October 2020)
- 4 Double bedrooms (1 bedroom has been converted into a bespoke dressing room but could re instated into a bedroom as central island is moveable)
- Family bathroom and further washroom (WC)
- Attractive paved and artificially grassed rear garden with access to a large outbuilding
Floor plans


Summary
Discover the allure of The Hollies, an impressive double-fronted period-style family residence nestled in a convenient and leafy upper Douglas location. This captivating home is within easy walking distance of local schools, shops, and the city centre, offering a perfect blend of comfort and sophistication.
As you step into the welcoming reception hall, you are embraced by the charm and character that define this residence. The accommodation seamlessly retains much of its original allure, featuring pleasing period details throughout.
The elegant living room, adorned with tiled flooring, opens up to a snug/family area, creating a cozy retreat for relaxation and entertainment. The heart of the home lies in the stunning open-plan dining kitchen, boasting a large island and breakfast bar seating. A new kitchen, fitted in October 2020, adds a touch of modern luxury to this classic setting.
The property accommodates four double bedrooms, with one bedroom currently transformed into a bespoke dressing room, adding flexibility to the layout. A family bathroom and an additional washroom (WC) cater to the needs of a modern family.
Step outside to an attractive paved and artificially grassed rear garden, providing a delightful outdoor haven. Access to a large outbuilding enhances the property's versatility, offering potential for various uses.
The Hollies is more than just a home; it's a timeless haven of elegance and comfort. Don't miss the opportunity to make it your own and experience the charm of this period-style family residence.
Primary Schools
- Scoill yn Jubilee
Secondary Schools
- Ballakermeen
- St Ninian's
Further Information
Inclusions All fitted floor coverings
Appliances Electric oven and hob with downdraft extractor
Tenure Freehold
Rates Payable Treasury Call 685661 and Douglas Borough call 696347
Heating Oil
Amenities
- Garden
- School Nearby
- Town
Location
The Hollies, 54 Selborne Drive, Douglas
- View more Isle of Man properties in Douglas
- View more Isle of Man properties in the East
- View more Isle of Man properties within the IM2 postcode
- View more Isle of Man properties in the Scoill yn Jubilee primary school catchment area
- View more Isle of Man properties in the Ballakermeen secondary school catchment area





















