Key features
- Attractrive semi detached family home
- Convenient and popular location - ideal for a growing family
- Located within easy reach of Onchan village and the local school
- Modern kitchen
- Spacious living room & dining room with storage
- 3 Good sized bedrooms
- Family bathroom with separate WC
- Large driveway with parking for multiple cars
- Garage
- Private lawned rear garden with patio area
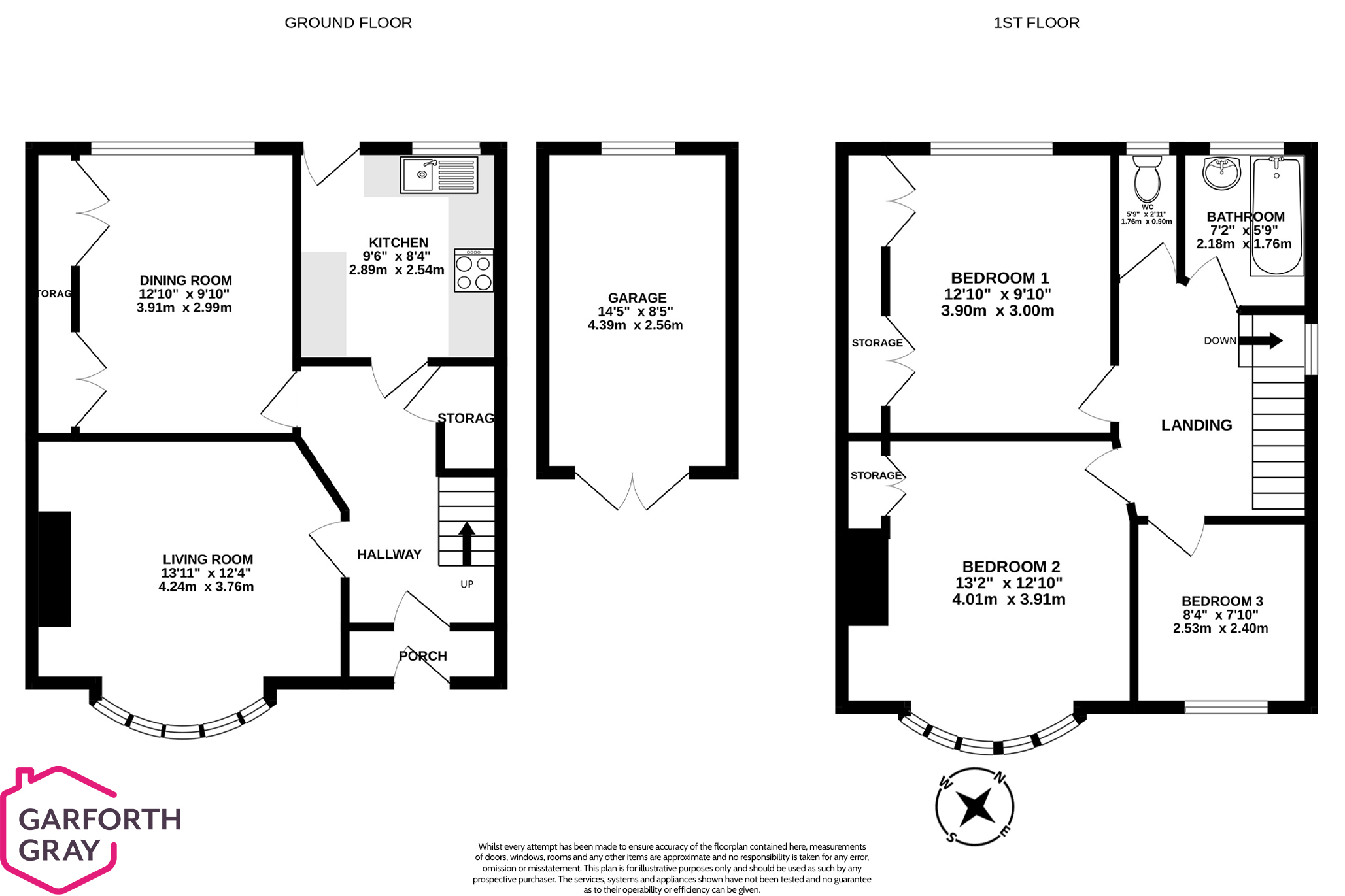
Floor Plans
View the full layout and room dimensions for this property.
Summary
Traditional three bedroom semi detached home enjoying a convenient and popular location. This fine property is within short walking distance of the amenities of Onchan and is perfect for a growing family.
The spacious accommodation comprises; entrance hallway, living room with a feature curved bay window, modern kitchen and separate dining room with ample storage with aspects to the rear garden. To the first floor are three bedrooms, family bathroom and a separate WC. Externally there is an large driveway providing off road parking for multiple vehicles and low maintenance lawned area and garage. To the rear of the property is an private enclosed lawned garden with patio.
Primary Schools
- Onchan
- Ashley Hill
Secondary Schools
- St Ninian's
Further Information
Inclusions All fitted floor coverings
Tenure Freehold
Rates Payable Treasury tel - 01624 685661 and Onchan Borough tel - 01624 675564
Appliances Integrated appliances
Heating Gas
Windows uPVC double glazing
Amenities
- Garage/Parking
- Garden
- Parking
- School Nearby
- Town
Location
- View more Isle of Man properties in Onchan
- View more Isle of Man properties in the East
- View more Isle of Man properties within the IM3 postcode
- View more Isle of Man properties in the Onchan primary school catchment area
- View more Isle of Man properties in the St Ninian's secondary school catchment area











