Key features
- Unique coastal residence set in approx. 12.5 acres of stunning countryside
- Beautiful sea views over the western coastline towards the iconic Peel Castle, Kirk Michael and beyond with distant outlooks stretching across to Ireland and Scotland on a clear day
- Excellent specification complemented by contemporary touches creating a truly grand design
- Magnificent welcoming reception hall
- Large and impressive ‘super room’ combining a stunning dining kitchen with a spacious lounge area, ideal for modern family living and entertaining
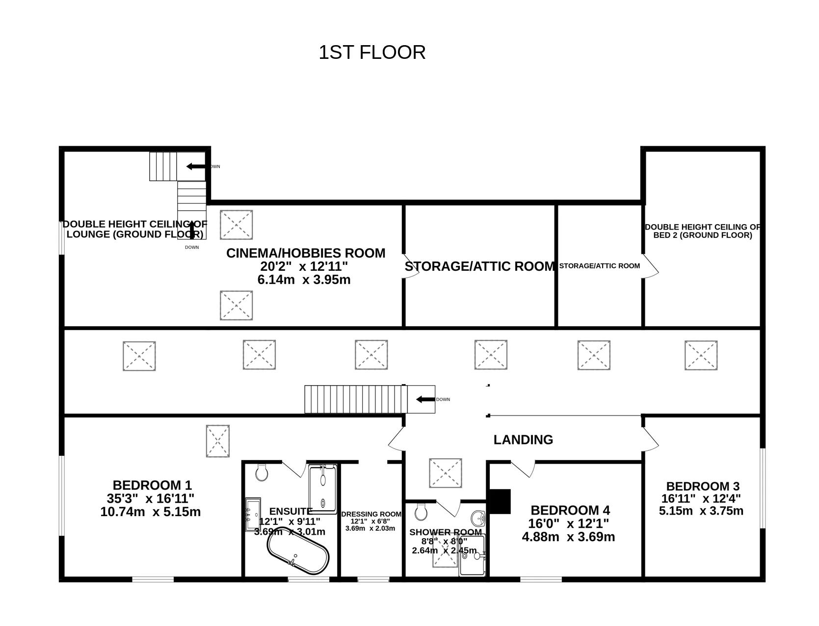
- Living room, adaptable lounge currently being used as a study along with a mezzanine first floor cinema/hobbies room
- Luxurious principal bedroom suite offering a dressing room and luxury ensuite with roll top bath, creating a tranquil retreat
- Family shower room and three further double bedrooms including an additional ground floor bedroom suite offering a dressing room and luxury ensuite - ideal for guests
- Gated entrance leading to the extensive driveway providing excellent parking and access to the integral double garage
- Wrap around terraces and walled courtyard featuring a Koi pond
Floor Plans
View the full layout and room dimensions for this property.
Summary
Jonathan Garforth - Garforth Gray Luxury presents a rare opportunity to acquire a bespoke coastal residence in one of the Isle of Man’s most desirable locations, perfectly combining modern luxury with timeless character and unrivalled views!
Lowena House is where the sky melts into the sea and time gently slows down...
Set within approximately 12.5 acres of stunning countryside, this unique coastal home enjoys breathtaking panoramic sea views across the western coastline towards the iconic Peel Castle, Kirk Michael and beyond with distant outlooks stretching across to Ireland and Scotland on a clear day. Here, the sunsets are nothing short of spectacular, and throughout the seasons the current owners have often enjoyed the magical unforgettable sight of schools of dolphins breaking the surface against the backdrop of the setting sun.
Designed to an excellent specification and enhanced by contemporary architectural touches, the property offers a truly grand design that blends modern methods of construction with warmth and character. Energy efficiency is at the forefront, with an air source heating pump ensuring thermal performance and reduced running costs compared to more traditional homes.
A Home of Scale & Presence
A gated entrance opens onto an extensive driveway, offering generous parking and access to the integral double garage with an electrically operated door, immediately setting the tone for the quality beyond.
The magnificent reception hall provides a striking first impression - a space of light, volume and elegance that flows effortlessly into the heart of the home: an impressive ‘super room’. This remarkable open-plan space seamlessly combines a stunning dining kitchen with a spacious lounge area, perfectly designed for modern family living and entertaining on any scale. Floor-to-ceiling sliding doors flood the room with natural light and quite literally bring the outside in, framing ever-changing coastal views throughout the year.
In addition, a spacious separate living room with matching floor-to-ceiling sliding doors also frames the coastal views and features a wood-burning stove offering the perfect setting for cosy evenings by the fire. An adaptable lounge, currently utilised as a study, provides further flexibility, while a mezzanine first-floor cinema/hobbies room creates an exceptional lifestyle feature, ideal for relaxation, creativity or family movie nights.
Practicality has been equally well considered, with a utility/boot room, back kitchen/pantry and dedicated plant room enhancing everyday functionality.
Luxurious Accommodation
The principal bedroom suite is a sanctuary of calm, complete with a dressing room and a luxurious ensuite featuring a roll-top bath were you can relax and take full advantage of the beautiful coastal views - the perfect retreat in which to unwind while soaking in the peaceful surroundings.
Three further double bedrooms provide generous accommodation, including a superb ground floor bedroom suite with its own dressing room and luxury ensuite, ideal for guests or multi-generational living with the option of it's very own entrance door. A stylish family shower room serves the remaining bedrooms.
Grounds, Lifestyle & Future Potential
Externally, landscaped grounds wrap elegantly around the property, creating a series of outdoor living spaces including wrap-around terraces and a charming walled courtyard complete with a tranquil Koi pond.
The land extends to a highly manageable 12.5 acres, ideal for paddock grazing, with walkways thoughtfully cut through the grounds leading to the two natural ponds that attract an abundance of local wildlife. Fully dog-proofed, the land provides a private retreat where pets can roam freely and owners can enjoy peaceful countryside walks without leaving home and a lap of the land equates to a one mile walk.
Importantly, there is potential to extend subject to the relevant regulations and permissions. On 12 February 2024, the current owners obtained planning permission for the creation of a substantial raised deck area with tractor storage beneath - further enhancing the lifestyle offering and future flexibility of this remarkable home. CLICK HERE to view all plans/elevations and information relating to the planning permission.
Perfectly positioned within easy reach of Peel, local beaches and a scenic drive to Douglas centre, this outstanding residence delivers privacy, scale and coastal beauty in equal measure.
A rare and compelling opportunity to secure a truly special coastal estate, where luxury living meets nature, and every sunset feels like a private performance.
Primary Schools
- The Buchan
- Michael
Secondary Schools
- King William’s College
- Queen Elizabeth II
Further Information
Inclusions All fitted floor coverings, blinds (battery powered in the kitchen and living rooms), and light fittings
Appliances
Electric Aga
2 Electric steam ovens
5-ring bottled gas hob with extractor hood
Freestanding smart fridge and freezer with UV water filter
Full height integrated freezer and space/provision for a full height integrated fridge
Integrated dishwasher
Food waste disposal unit
Washing machine
Dryer
Tenure Freehold
Rates Treasury tel - 01624 685661
Heating Air source heat pump - underfloor heating to the ground floor (excluding bedroom 2) and radiators to the first floor. Complemented by a pressurised hot water cylinder featuring an automatic flushing system, preventing legionella in the water.
Windows Triple glazed UV tinted windows
Additional Services:
Three-phase electric with connection in place for the proposed extension
HIKVISION security camera system
WiFi battery backup to ensure productivity and no down time
Cat 5 ethernet connections throughout
Starlink installed
Fibre available at the property
Wi-Fi 7 - known as Extremely High Throughput (EHT)
Amenities
- Garage/Parking
- Garden
- Land
- Rural
- School Nearby
- Seaviews
- Town
Location
Lowena House, Peel Road, Kirk Michael
- View more Isle of Man properties in Kirk Michael
- View more Isle of Man properties in the North
- View more Isle of Man properties within the IM6 postcode
- View more Isle of Man properties in the The Buchan primary school catchment area
- View more Isle of Man properties in the King William’s College secondary school catchment area










-jpg.webp)































